Hickory #1175

Starting at $4,156
2,125 Sq. Ft. | 2 Bed | 2.5 Bath
Available Jun 24

Features

  • Living Areas

    • Wood Plank Flooring
  • Kitchen and Bath

    • Built-in Microwave
    • Garbage disposal
    • Modern Kitchen
    • Linen Closet In Hallway
    • Dishwasher
    • Kitchen Pantry
    • Quartz Countertop
  • Home Attributes

    • Garage Attached
    • Smart Home Door Lock
    • Smart Home Thermostat
    • Central Air Conditioning
    • Dryer
    • Washer
  • Premium Features

    • Balcony
    • Walk-in Closet
    • Fireplace
  • 2D Diagram
  • 2D Diagram Furnished
  • 3D Tour
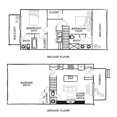
Eldridge Townhomes - Elmhurst, IL - Hickory Floor Plan

Hickory

This 2-bedroom, 2 ½-bathroom floor plan features two floors plus a two-car garage. 

Eldridge Townhomes - Elmhurst, IL - Hickory Floor Plan

Hickory

This 2-bedroom, 2 ½-bathroom floor plan features two floors plus a two-car garage. 

Hickory

This 2-bedroom, 2 ½-bathroom floor plan features two floors plus a two-car garage. 

*Apartment prices, availability and terms are subject to change without notice. Apartment photos and floor plans are for illustrative purposes only. Actual square footage, layout, and property or apartment features may vary.