BACK TO RESIDENCES

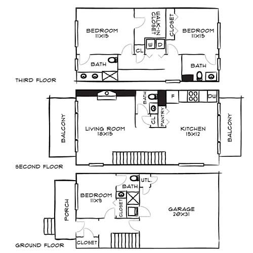
Aspen

Diagram
Elm Creek Eldridge  townhomes - Elmhurst, IL - Aspen Floor Plan
Elm Creek Eldridge townhomes - Elmhurst, IL - Kitchen

Available Units

Unit #1106
Starting at $4,806
2,604 Sq. Ft.
Available Now
Unit #1122
Starting at $5,106
2,604 Sq. Ft.
Available Jun 20