Schedule A Tour
Apply Now
Home
Residences
Community Features
Gallery
Location
FREQUENTLY ASKED QUESTIONS
BACK TO RESIDENCES
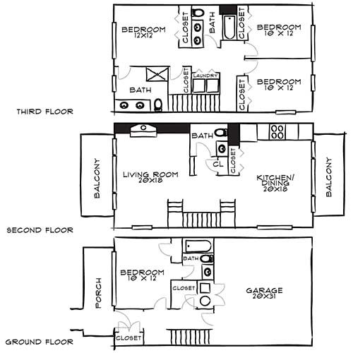
Maple
Diagram
Photo
Diagram
Diagram
Photo
Available Units
Unit #1173
Starting at $5,380
2,998 Sq. Ft.
Available Dec 24
View Unit